新能源汽车制造业正处于急剧上升周期中,传统汽车制造业巨头-奔驰也不断在转型中优化流程。随着竞争加剧,每个流程的成本控制都异常重要。因此,作为汽车制造业流程优化的其中一环,零部件管理的降本增效被北京奔驰纳入议程中。
接到奔驰询盘后,优耐克斯结合一线工作人员的反馈和现场调研,提出目前仓储式货架方案的弊端:
1、贵重备件存储容易沾灰和丢失;
2、底层和高层的金属备件需要弯腰存取,容易产生职业损伤;
3、角落的备件光线较暗,寻找所需的备件需要花费大量时间;
4、由于货架调整层高不方便,货架存放小批量或小件货物时,浪费空间较大;
5、不同批次备件没有独立仓储空间;
6、固化的仓储空间难以适应随时变化的备件品种和规格;
7、库房凌乱,影响公司和品牌形象。
优耐克斯提出用模块化的抽屉式储物柜作为一个仓储单元,再利用这种单元搭建成一个小型的存储墙和错层抽屉柜系统,既可用于车间隔断,又可节省大量仓储空间。
整个系统的好处如下:
1、中央锁控制的封闭式空间满足了备件的精细化管理;
2、全开式抽屉收纳空间无死角,无需担心照度和弯腰存取问题;
3、每个柜子、抽屉、分隔片都可以独立贴标分类,便于快速寻找货物;
4、抽屉空间可根据物料尺寸随时轻松调整,因此,每个空间都能得到充分利用;
5、每个抽屉最大承重可达200kg,并由多种分区组件进行分隔,确保每种备件都有独立空间;
6、抽屉柜系统的仓储空间可根据业务拓展随时扩充和灵活布局;
抽屉柜系统的搭建既充分利用了高度空间,又实现了整洁、美观、高效的备件存储。因此,方案提出后,随即得到北京奔驰的高度认可,并选出总装车间作为试点,试点成功后再推广至其他区域。
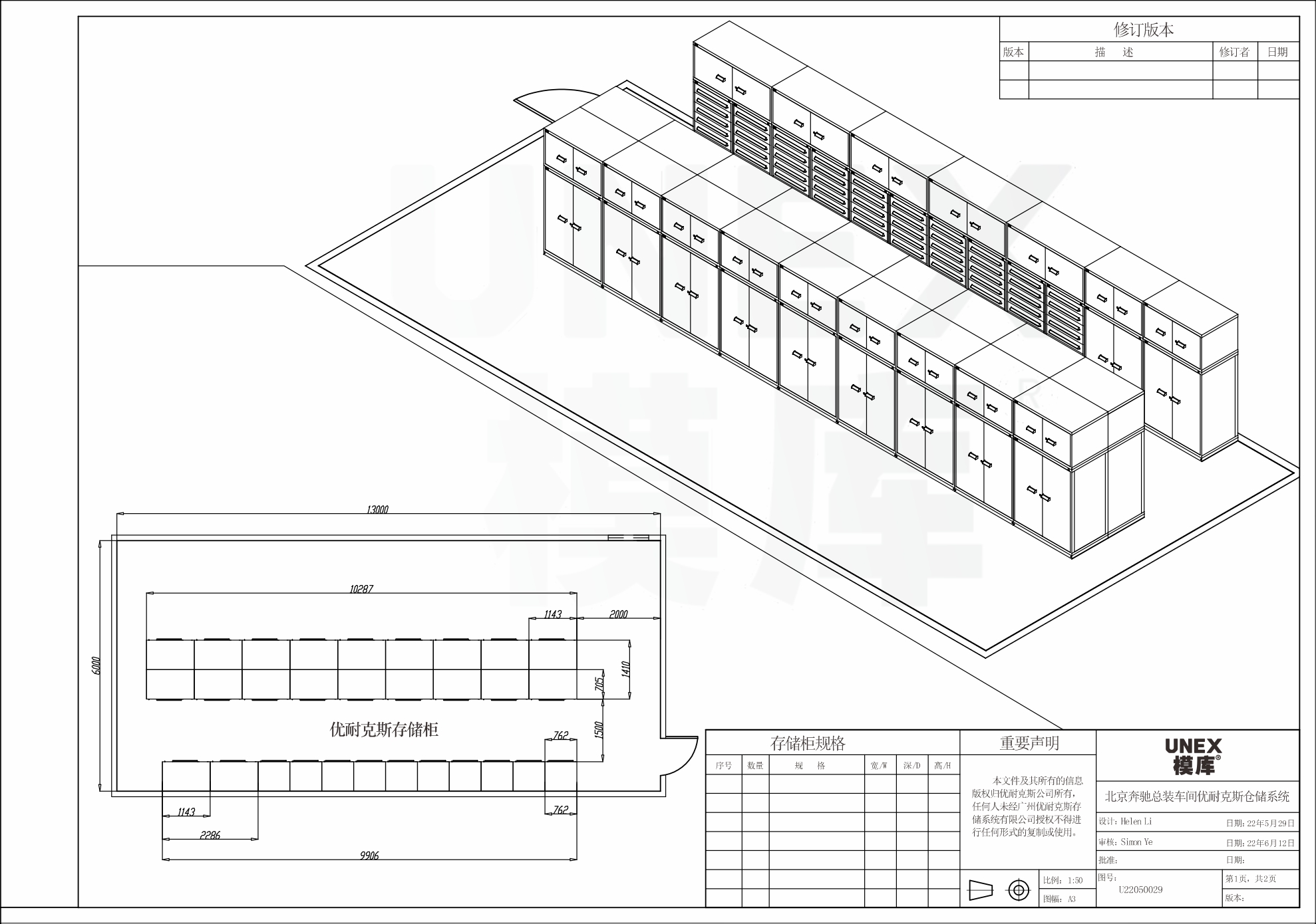
最终确认后的方案由3排存储墙和1个小型错层系统组成。方案交付后,获得了一线员工、主管及项目团队的一致赞赏。
小型错层系统由两层高强度工具柜组成,底下1层工具柜的顶部作为上层工具柜的通道,铺装实木台面后防震静音。所有工具柜在顶部、底部、侧面预埋隐性连接孔,在现场安装时只需上紧连接螺栓即可。
工具柜的刚性框架允许最高4层叠放,确保整个错层系统安全坚固、高效耐用。
大件货物存放于底层的双开门置物柜,常用物料放在抽屉式存储柜,整体方案既能满足仓储需求,又减少了重型轨道的使用,整体预算显著减少,体现出了更好的投资回报率。
加高柜和200kg级别抽屉柜组成的3排存储墙,满足了大件货物和小型零部件的存储需求:
全开式的抽屉柜和空间分区,即可用于不同备件的独立仓储,又了员工伸长手臂、垫脚、弯腰等存取动作。
“优耐克斯的专业知识和创新使九游会·J9-官方网站|真人游戏第一品牌能够为日益变化的未来定制设计最佳的零配件存储方案。”— 北京奔驰
作为专业的ga黄金甲架、工具柜、车间工作台制造商,优耐克斯已为奔驰、宝马、特斯拉、博世、法雷奥、本田、丰田等整车和零部件制造用户交付了大量成功案例。此外,九游会·J9-官方网站|真人游戏第一品牌的产品也在航空航天、国防军工、石油化工、轨道交通、家电制造、橡塑五金、教育培训等众多领域拥有数量庞大的用户,欢迎联系九游会·J9-官方网站|真人游戏第一品牌,一起探讨工业存储的持续改善方案,获取产品画册及案例手册。