九游会·J9-官方网站|真人游戏第一品牌

模库®工具柜错层系统

错层系统是通过搭建不同工具柜组成的模块化仓储阁楼。得益于4个加强立柱,柜体堆叠的重量被柱子均衡吸收,工具柜错层系统最高可堆至4层摆放,整体承重高达10吨。工具柜错层系统充分利用底层工具柜作为阁楼通道,用更少的成本拓展被浪费的高层空间,使用很小的占地面积就可同时收纳成千上万种不同尺寸重量的物料。是线边仓、库房仓储的新型仓储设备。             
         
模库®工具柜错层系统广泛应用于汽车制造、航空保障、轨道交通、能源化工、实训中心、传统制造等各种场合。模库®工具柜错层系统的特点包括了科学的结构设计、坚固可靠的品质、多样化的存储功能和典雅大气的外观。          
         
         
       
工具柜错层系统奔驰案例          

“工具柜搭建的阁楼系统很稳固,九游会·J9-官方网站|真人游戏第一品牌主要用于线边仓的贵重物料存储;丰富的抽屉分隔单元满足了功能需求,典雅的风格高度融入了奔驰的企业文化。这是九游会·J9-官方网站|真人游戏第一品牌在国内用过最超预期的工具柜。”


北京奔驰工具柜错层系统案例  刘科   2013年     

模库工具柜提供坚固高效的作业环境

模库工具柜采用分级锁管理,不同钥匙对应不同级别权限。全开式抽屉滑轨,收纳空间无死角。个性化的分区组件,确保每一种物料都有独立的存储空间。物料变动时,随时灵活调整分区组件,每一寸空间都不会浪费。模块化的柜体和抽屉,可根据业务拓展随时扩充组合!

“通过前期在缓冲区购买两个标准工具柜测试后,北京奔驰确信使用这种收纳方式带来的3个显著效益:

1、同等占地面积库容提升了60%;

2、贵重及敏感物料库存得到充分保护;

3、库存检索和存取效率得到显著提升。

因此,奔驰在正式纳入工具柜错层系统方案后,对这种工具柜阁楼系统的导入驾轻就熟,对优耐克斯模库的设计人员提出了许多贴近现场使用需求的建议,仅仅经过一个星期的磨合,方案就得到了双方最终确认并认可。


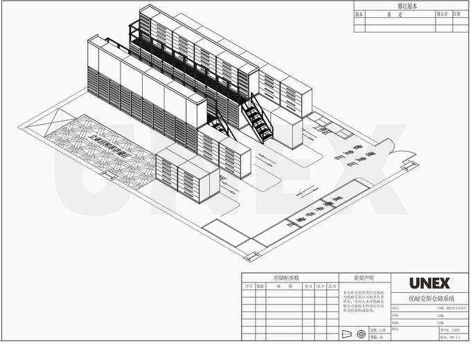
工具柜错层系统北京奔驰案例一期图纸    优耐克斯模库设计人员 Helen
工具柜错层系统奔驰案例图纸      


使用工具柜错层系统,通常需要根据现场空间、物料品类和规格,以及物料场内搬运流程和地面承重等要素,根据适用原则订制方案,为用户提供周到细致的全案服务及精良的产品,这正是模库的专长。

当业务有增长需求时,您可以根据需求变化对工具柜系统进行扩展。模库的服务将一直伴随用户成长。

专业、安全、可持续 – 这就是模库®


了解有关模库® 的更多信息。

“使用模库工具柜系统可以轻松地充分利用空间,大容量的抽屉和精良的品质,确保九游会·J9-官方网站|真人游戏第一品牌的每一分投入都能获得超出预期的价值。”


卡特彼勒工具柜案例  毛克敏  供应链管理部


相关产品参数

提交需求,免费获取方案报价
与模库携手,改变,永比友商快一步